Evaporador de carcasa y tubos
Solicite un presupuesto
El evaporador tubular, fabricado en acero inoxidable de alta resistencia, ha sido diseñado para medios limpios o corrosivos. Su estructura compacta, excelente eficiencia térmica y capacidad para soportar presión lo hacen adecuado para aplicaciones en industrias con altos estándares de higiene, como la farmacéutica, alimentaria y química. Es un componente esencial en enfriadores, bombas de calor y sistemas de refrigeración de procesos, asegura un rendimiento confiable y prolongado del equipo.
Especificaciones
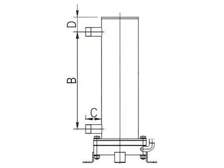
| Modelo de intercambiador de calor | Potencia del compresor | Conexión de tubería de agua | Dimensiones (mm) | |||||
| A | B | C | D | E | F | |||
| | 1HP | DN15 | 550 | 370 | 40 | 50 | 193 | 193 |
| | 2HP | DN20 | 550 | 370 | 40 | 50 | 212 | 212 |
| | 3HP | DN25 | 550 | 370 | 40 | 50 | 235 | 235 |
| | 4HP | DN25 | 550 | 370 | 40 | 50 | 255 | 255 |
| | 5HP | DN25 | 600 | 420 | 40 | 50 | 285 | 285 |
| | 6HP | DN25 | 600 | 420 | 40 | 50 | 285 | 285 |
| | 7HP | DN25 | 600 | 420 | 40 | 50 | 305 | 305 |
| | 8HP | DN25 | 650 | 475 | 40 | 60 | 305 | 305 |
| | 10HP | DN40 | 650 | 455 | 50 | 70 | 330 | 330 |
| | 12HP | DN40 | 650 | 455 | 50 | 70 | 330 | 330 |
Especificaciones
| Modelo de intercambiador de calor | Potencia del compresor | Conexión de tubería de agua | Dimensiones (mm) | |||||||
| A | B | C | D | E | F | G | H | |||
| | 3HP | DN25 | 585 | 260 | 200 | 100 | 200 | 160 | 40 | 370 |
| | 4HP | DN25 | 585 | 260 | 200 | 100 | 200 | 160 | 40 | 370 |
| | 5HP | DN25 | 618 | 277 | 200 | 100 | 300 | 180 | 40 | 404 |
| | 6HP | DN25 | 618 | 277 | 200 | 100 | 300 | 180 | 40 | 404 |
| | 7HP | DN25 | 618 | 290 | 200 | 100 | 300 | 180 | 40 | 404 |
| | 8HP | DN25 | 708 | 290 | 200 | 100 | 350 | 180 | 50 | 475 |
| | 10HP | DN40 | 828 | 290 | 200 | 100 | 450 | 180 | 50 | 560 |
| | 12HP | DN40 | 828 | 290 | 200 | 100 | 450 | 180 | 50 | 560 |
| | 15HP | DN40 | 1118 | 290 | 200 | 175 | 600 | 180 | 50 | 860 |
| | 20HP | DN50 | 1603 | 277 | 200 | 275 | 900 | 180 | 65 | 1320 |
| | 25HP | DN50 | 1603 | 290 | 200 | 275 | 900 | 180 | 65 | 1320 |
Especificaciones
| Modelo de intercambiador de calor | Potencia del compresor | Conexión de tubería de agua | Dimensiones (mm) | |||||||
| A | B | C | D | E | F | G | H | |||
| | 4HP*2 | DN25 | 708 | 290 | 200 | 100 | 350 | 160 | 50 | 475 |
| | 5HP*2 | DN25 | 828 | 290 | 200 | 100 | 450 | 190 | 50 | 560 |
| | 6HP*2 | DN25 | 828 | 290 | 200 | 100 | 450 | 160 | 50 | 560 |
| | 7,5HP*2 | DN25 | 1118 | 290 | 200 | 175 | 600 | 190 | 50 | 860 |
| | 10HP*2 | DN40 | 1603 | 277 | 200 | 275 | 900 | 180 | 65 | 1320 |
| | 12HP*2 | DN40 | 1603 | 290 | 200 | 275 | 900 | 180 | 65 | 1320 |
| | 15HP*2 | DN40 | 1603 | 290 | 200 | 275 | 900 | 180 | 65 | 1320 |
| | 20HP*2 | DN50 | 1615 | 365 | 280 | 275 | 900 | 200 | 65 | 1320 |
| | 25HP*2 | DN65 | 1615 | 436 | 320 | 275 | 900 | 280 | 65 | 1320 |
| | 30HP*2 | DN65 | 1650 | 477 | 320 | 275 | 935 | 280 | 100 | 1335 |
Especificaciones
| Modelo de intercambiador de calor | Potencia del compresor | Conexión de tubería de agua | Dimensiones (mm) | |||||||
| A | B | C | D | E | F | G | H | |||
| | 5HP*3 | DN40 | 1118 | 290 | 200 | 175 | 175 | 180 | 50 | 860 |
| | 10HP*3 | DN50 | 1615 | 365 | 250 | 275 | 275 | 200 | 65 | 1320 |
| | 12HP*3 | DN50 | 1615 | 365 | 250 | 275 | 275 | 200 | 65 | 1320 |
| | 20HP*3 | DN65 | 1650 | 477 | 320 | 275 | 275 | 280 | 100 | 1335 |
| | 25HP*3 | DN65 | 2315 | 477 | 320 | 275 | 275 | 280 | 100 | 1865 |
Especificaciones
| Modelo de intercambiador de calor | Potencia del compresor | Conexión de tubería de agua | Dimensiones (mm) | |||||||
| A | B | C | D | E | F | G | H | |||
| | 10HP*4 | DN50 | 1612 | 453 | 320 | 250 | 859 | 280 | 100 | 1160 |
| | 12HP*4 | DN65 | 1612 | 468 | 320 | 250 | 859 | 280 | 100 | 1160 |
| | 15HP*4 | DN65 | 1612 | 468 | 320 | 250 | 859 | 280 | 100 | 1160 |
| | 20HP*4 | DN80 | 2326 | 468 | 320 | 250 | 1550 | 280 | 100 | 1870 |
| | 25HP*4 | DN80 | 2578 | 468 | 320 | 250 | 1802 | 280 | 100 | 2122 |
| | 30HP*4 | DN80 | 2578 | 508 | 320 | 250 | 1802 | 280 | 100 | 2122 |
Especificaciones
| Modelo de intercambiador de calor | Potencia del compresor | Conexión de tubería de agua | Dimensiones (mm) | |||||||
| A | B | C | D | E | F | G | H | |||
| | 12HP*5 | DN65 | 1612 | 482 | 320 | 250 | 859 | 280 | 100 | 1160 |
| | 25HP*5 | DN100 | 2578 | 588 | 400 | 350 | 1802 | 350 | 350 | 2122 |
| | 25HP*6 | DN100 | 3128 | 588 | 400 | 350 | 1802 | 350 | 350 | 2672 |
Otros productos

