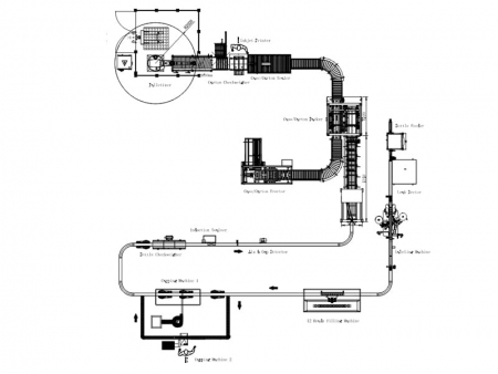
Línea de llenado de café en polvo
La línea automática de llenado de polvo está diseñada para el envasado cuantitativo de diversos productos en polvo en envases como botellas, frascos, vasos y cubos pequeños. Es adecuada para una amplia gama de materiales en polvo, como leche en polvo, café en polvo, leche de soja en polvo, proteína en polvo, medicamentos veterinarios, desinfectantes en polvo, glucosa, bebidas sólidas, glutamato monosódico, tóner, talco, pesticidas, colorantes y saborizantes en polvo.
Para envases con formas irregulares y diseños no estándar, la línea de producción se puede personalizar para satisfacer requisitos específicos de envasado. Tomando como ejemplo el envasado de café en polvo en envases de vidrio con forma de vaso, este caso demuestra cómo el sistema mantiene un control de automatización preciso incluso en diseños de envases complejos. El uso de vasos de vidrio con asas aumenta significativamente la complejidad del llenado, etiquetado y transporte automatizados del producto, lo que convierte a esta línea de llenado de polvos en una solución representativa para las necesidades de envasado no estándar.
- Envase: Café en polvo
- Capacidad: 1800-3000 vasos/hora (250g)
- Tipo de recipiente: Vaso de vidrio con asa
- Rango de llenado: 250 g y 500 g
- Llenadora de polvo
La llenadora de polvo utiliza un sistema de dosificación de tornillo sinfín para llenar una cantidad precisa de café en polvo en vasos de vidrio. Cada llenadora funciona de forma independiente y se pueden activar de 1 a 3 cabezales de llenado simultáneamente según las necesidades de producción. Esta configuración garantiza una dosificación precisa y flexibilidad en configuraciones con varios cabezales.
- Rendimiento: 1800-3000 tazas/hora
- Precisión de llenado: ≤1%
- Fuente de alimentación AC380V, 50/60Hz, 3P
- Fuente de aire: 0.4-0.6 MPa
- Tapadora de prensa automática
La tapadora automática cuenta con un sistema de prensa de rodillos accionado por transportador que aplica presión de forma segura a tapas de varios tamaños, garantizando un sellado constante y firme para cada taza o frasco.
- Rendimieno: 3,000 vasoss/hora
- Fuente de alimentación AC380V, 50/60Hz, 3P
- Etiquetadora para vasos de vidrio irregulares
Esta etiquetadora de diseño personalizado resuelve el reto de etiquetar vasos de vidrio con asas y formas irregulares. Ajusta automáticamente la posición del vaso para una alineación precisa y aplica la etiqueta en el punto exacto designado. Diseñada como un modelo no estándar, garantiza un etiquetado estable y preciso para envases irregulares.
- Rendimiento: 4,000 vasos/hora
- Fuente de alimentación AC380V, 50/60Hz, 3P

